Legacy Gym Revitalization

A New Chapter for Gallatin Shalom Zone

News

Gallatin Shalom Zone Receives Significant Contribution from Meta to Preserve History

State Senate Awards $500K to Support Gallatin Shalom Zone’s Capital Campaign

WKRN Feature "Leaving a legacy: Abandoned Gallatin gym being restored for community use"

State Senate Awards $500K to Support Gallatin Shalom Zone’s Capital Campaign

Help Us Make the Gym Possible

Anyone wishing to contribute to repairing and reopening the gym may do so by donating online

For more information or assistance, call Shalom Zone directly at 615-442-7575 or email Executive Director Bethany Sullivan

Donations by mail are also welcome. Please send to Gallatin Shalom Zone, 600 Small Street, Gallatin, TN 37066; please note “Legacy Gym” in the memo line. Your support will make a meaningful impact for generations to come.

First Union High School circa 1922 for African Americans
Second Union High School circa 1951

History of Union High Gym

The gymnasium at Gallatin Shalom Zone holds a rich history as a vital part of Union High School, which was Sumner County’s only black high school during the era of segregation. Constructed in 1950, the gym served as a center for education, athletics, and community gatherings, playing a pivotal role in the lives of many African American students and families.

In 1970, after Union High’s integration into the county school system, the school became Union Seventh. A few years later, the sixth grade was moved from Guild School and the name of the school was changed to Union Sixth. The school operated as Union Sixth until 1978, when the school was renamed Rucker-Stewart Middle School, in honor of two distinguished African-American educators, Dr. J. N. Rucker and Reverend R. A. Stewart.

The new Rucker-Stewart Middle School was built in 1995 for sixth, seventh, and eighth grade students, and the building’s operations ceased for over a decade. The building and the gym were both condemned and in 2004 the county deeded the entire property to Gallatin Shalom Zone, symbolizing a bridge between the past and the present. The historic gym was not part of the initial renovation but has always been a dream for the organization and the community.

The history of Union High School continues to echo through the walls of the gym, telling stories of resilience, perseverance, unity, and progress that inspire the community today. The upcoming renovation aims to honor the legacy of Union High School and its students and teachers, and offer an inclusive environment where children, youth, families, and individuals can come together for sports, the arts, education, and shared experiences, making it a welcoming hub for connection and unity.

How This Renovated Space Will Be Used

The renovated gymnasium at Gallatin Shalom Zone is set to become a cornerstone for community engagement, education, and empowerment, rooted in the historic site of Sumner County’s only Black high school. By revitalizing this culturally significant space, we aim to honor the legacy of Union High School and cater to the evolving needs of our diverse community. The gym will provide resources and programs primarily serving disadvantaged and minority children, thereby expanding our outreach to hundreds of additional families. This restoration preserves a crucial part of our history and offers a vibrant venue for fostering unity and lifelong learning. As we approach Union High School’s centennial celebration, the renovated gym stands ready to inspire future generations by commemorating the past, embracing the present, and empowering the future.

Legacy Gym renovations 2025

Reviving a Historic Gym. Expanding Our Reach.

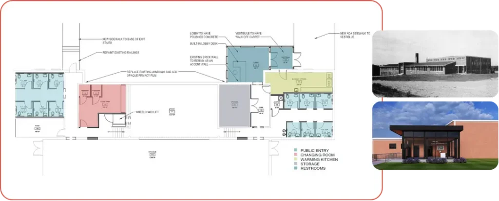
Gym blueprints
Gym blueprints mobile

Key Upgrades

Total Cost: $3M

Why This Gym Is Different?

“Reopening the gymnasium is not just about creating more space—it’s a critical step forward in expanding their mission… to serve with dignity, compassion, and purpose.”

Legacy Gym Renderings

Thank You

Shalom Zone would like to thank these partners for their generous support and contributions toward the historic gym revitalization: Rosendin Electric, Harris Mechanical, Cherry Coatings, Porter Roofing, OES, Equipment, Summit Concrete, EIG, Volunteer Rebar, Brundage Bone, SRM Concrete, Sherwin Williams, Sunbelt Rentals, Rockwood Solutions, and Gallatin Codes Department.